大型連鎖機構廚房設計服務商
15年商廚廚房設計經驗
服務眾多品牌客戶
- 廚房布局、水電點位、現場測量
- 廚房設備清單、報價、電量表
- 節能設備、智能設備、4D廚房
- 排煙系統、補風系統、制冷系統

公司電話 010-56865672
服務內容: 1.廚房功能布局圖紙2.廚房設備選型配置 3.廚房設備預算報價4.廚房設備水電點位圖紙5.排油煙系統風量圖 6.油煙凈化方案 隔油池方案
服務內容: 1.中央廚房功能布局 2.中央廚房設備擺放 3.中央廚房設備預算 4.中央廚房水電位深化圖紙 5.排煙系統風量圖 6.廚房排水、隔油系統 7.油煙凈化方案
服務內容: 1.廚房設計功能布局 2.廚房設備擺放 3.廚房設備預算 4.廚房水電位深化圖紙 5.廚房排煙系統風量圖 6.廚房排水點位、廚房隔油系統 7.油煙凈化方案
服務內容: 1.廚房功能布局 2.廚房設備擺放 3.廚房設備預算 4.水電位深化圖紙 5.排煙系統風量圖 6.廚房排水、隔油系統 7.油煙凈化方案 8.設備招標文件 9.配合工程驗收 北京昆泰酒店廚房設計 ,包括中餐廳廚房、西餐廳廚房、宴會廚房、鐵板燒、行政酒廊廚房、客房服務間、會所廚房等,廚房區域總面積約2000多平米。 【查看詳情】
云南撫仙湖醍醐酒店廚房工程設計,包括倉儲區/粗加工區、倉庫粗加工及員工餐廚房、中餐廳/宴會廳廚房、自助餐廳廚房、宴會廳備餐間、中餐廳宴會廳廚房、備餐服務間,廚房區域總面積約1500㎡。【查看詳情】
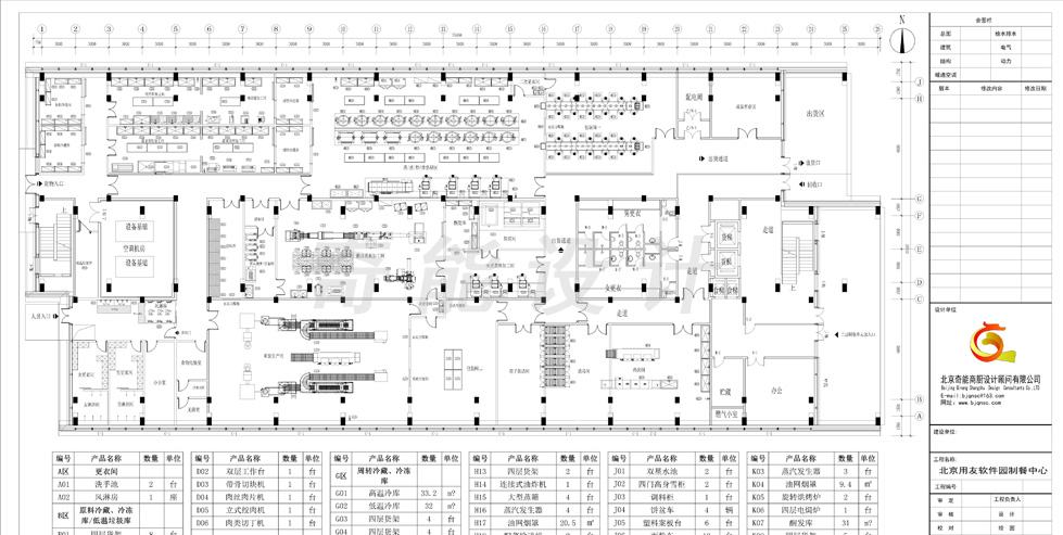
項目基本情況:用友軟件園中央廚房設計方案包括原材料處理區、熱調加工區、面點類產品加工區、米飯加工區、包裝分餐間等,米飯生產線、蔬菜清洗線、風淋房、廚房區域總面積約2000多㎡。【查看詳情】






王文杰總經理
郭威偉設計師
王曉孝助理設計師
王曉杰設計師
王俊設計師
石國兵設計師
北京奇能商廚設計顧問有限公司成立于2003年,是酒店廚房設計顧問公司、主營五星級酒店、連鎖餐飲、中央廚房、大型食堂廚房設計,由經驗豐富的廚房設計師團隊為您提供,廚房工程及洗衣房設計、顧問咨詢、配合廚房設備招標、廚房工程驗收等服務……
查 看 更 多
開年會議
展望
項目研討
會議總結
華晨寶馬BBA食堂廚房設計顧問項目中標 沈陽華晨寶馬車身餐廳、動力總成東西三個食堂廚房設計顧問項目由北京奇能商廚設計顧問有限公司中標!感謝寶馬中國的信任! MORE
北京城市副中心行政辦公區二期東南組團165、169地塊食堂設計中標 北京城市副中心行政辦公區二期東南組團一標段165、169地塊食堂設計中標
天津佳沃開元度假酒店廚房設計中標 中標的東西區地塊酒店總建筑面積57500平米。服務于東西區酒店廚房區域:包括后勤區、全日制餐廳、中餐廳、宴會、開敞式廚房...
中央廚房專題討論 本文關鍵詞:中央廚房 專題討論 一線同行深度交流,全方位提升中央廚房設計理念(中央廚房專題討論)2019年2月19日,我...
廚房設備包括哪些東西 廚房設備包括那些東西, MORE
酒店廚房設計布局效果圖 酒店廚房設計布局效果圖、4D中餐熱廚10個爐頭、一體式臺面、長龍洗碗機
新餐飲中央廚房設計規范條例-中央廚房設計 餐飲中央廚房的設計是非常重要的。中央廚房為保證原料質量的穩定,擁有自己的原料生產基地和廠家,在原材料達到合...
盒飯制作中央廚房設計圖_效果圖 中央廚房又稱中心廚房或配餐中心,其主要任務是將原料按菜單分別制作加工半成品或成品,配送到各連鎖餐飲店進行二次...
酒店廚房設計要滿足什么規范 法規要求:食品加工的衛生要求食品加工場所應當符合下列要求:墻壁貼瓷磚或其他防水、防潮、可清洗的材料制成的墻裙;(建議到吊... MORE
一套廚房設備多少錢? 一套廚房設備的價格因多種因素而異,包括廚房的類型(餐廳廚房、食堂廚房等)、設備的品牌、質量、功能、規格以及配置的齊全程度...
做專業商用廚房設計的重要性,如何科學定制商用廚房? 什么是商用廚房設計?商用廚房包括餐飲廚房,大型食堂廚房,中央廚房等服務于公共場合及連鎖餐飲店等的廚房。商用...
中央廚房怎么樣,建設中央廚房優點-中央廚房設計 本文關鍵詞:中央廚房怎么樣 建設中央廚房優點 中央廚房設計 中央廚房怎么樣,建設中央廚房優點-中央廚房設計: 建立中央廚...
友情鏈接 / Links 酒店廚房設計 廚房設備加盟 餐飲店設計公司 酒店設計公司 景區規劃 酒店健身器材 糧油米面 工業設計 沈陽平面設計 無錫裝修網
QQ咨詢
電話
在線留言
關注我們
返回頂部
| 民和 | 凉山 | 改则县 | 平南县 | 滦南县 | 砀山县 |
| 石嘴山市 | 遵义县 | 大荔县 | 于田县 | 荔浦县 | 永胜县 |
| 奉新县 | 阿图什市 | 内丘县 | 永年县 | 郴州市 | 吉林市 |